MILLION DOLLAR BABY
Restructuration et rénovation énergétique d'un immeuble de bureaux, Fontenay-sous-Bois (94), 2024
Surface : 1500m² (existant) 415m² (extension) 140m² (RdC aménagé) • Travaux : 3 500 000€ HT • Maîtrise d’ouvrage : ESSOR • Maîtrise d’œuvre : Secousses architectes, Albert&Co (BET Thermique Fluides), Leicht France (BET Structure), Camille GUALENI (Paysagiste)
Le projet consiste en une rénovation énergétique d'un immeuble de bureaux datant des années 1970 en intervenant sur les façades existantes et en construisant une surélévation d'un partie du bâtiment. Les façades existantes sont isolées en liège et leurs compositions redessinées pour créer une harmonie entre les volumes anciens et neufs tout en respectant le caractère moderniste du bâtiment. L'ensemble des menuiseries est remplacé et des embrasures sont imaginées pour faire entrer un maximum de lumière sans agrandir les baies. L'ajout de nouvelles surfaces de bureaux se fait dans la continuité des gabarits existants : le passage sous le bâtiment est cloisonné pour devenir un espace chauffé et la surélévation est imaginée dans le prolongement du bâtiment.
Cette extension de deux niveaux sur le bâtiment côté Nord est réalisée en caissons bois/paille préfabriqués avec enduit à la chaux, la toiture est végétalisée ainsi que les toitures existantes. Le revêtement de l'ensemble du bâtiment est en enduit à la chaux de couleur blanc cassé.
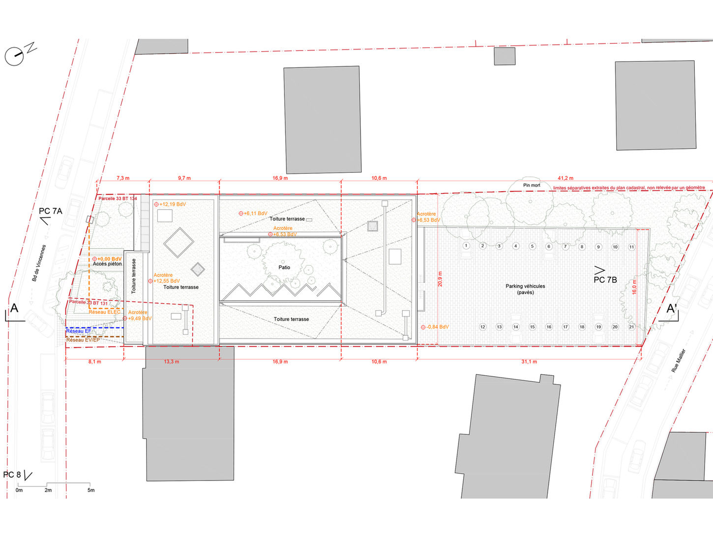
Initialement au Sud, l'entrée sur la parcelle est déplacée au Nord par la création d'une rampe pour les voitures et pour les piétons depuis la rue à l'arrière de la parcelle. Ce changement entraîne la modification d'un espace planté avec des arbres "d'intérêt" pour un agrandissement de cette zone paysagère. Le parking privé est alors désimperméabilisé et végétalisé davantage.
Une attention particulière est portée sur la trame verte existante. L'intervention valorise les trois séquences paysagères présentes en augmentant les surfaces perméables et en ajoutant différentes strates végétales. Ainsi, les employés bénéficient de la fraîcheur du jardin clos et de l'ombre protectrice des arbres en été.















